
by Adventurer Manufacturing · 2025
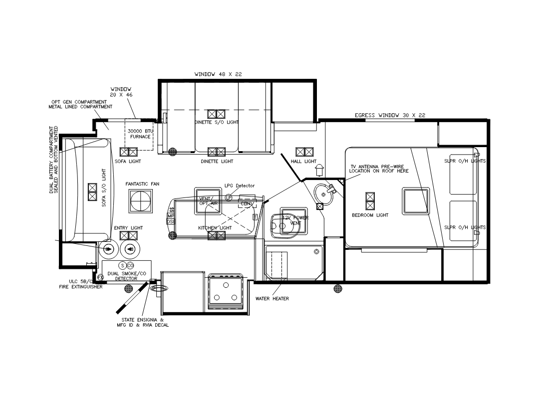
Adventurer Manufacturing's premium Eagle Cap line. The 1165 is a triple-slide camper with residential amenities including full dry bath, large kitchen, and optional king bed. One of the most spacious truck campers made.
Share your real-world data to help other buyers make informed decisions.
Ask anything — we'll research it and add it to this page.